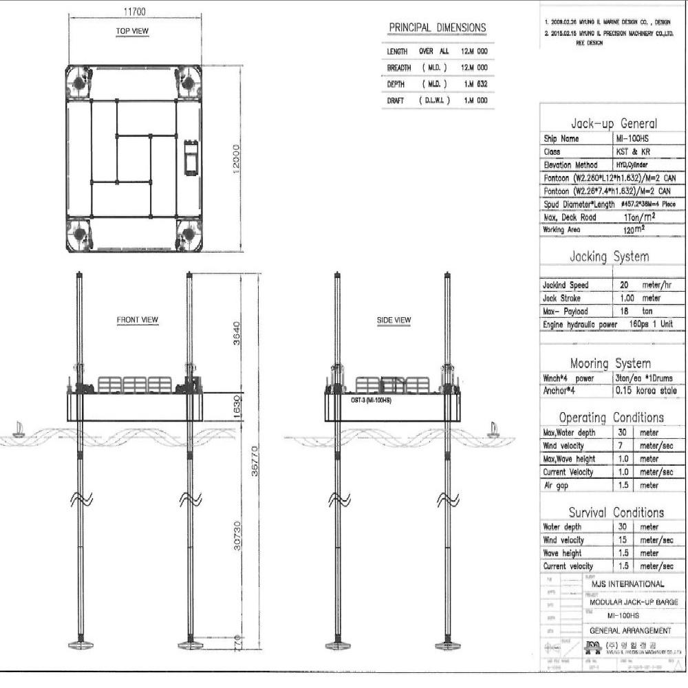
Quick Details
- Place of Origin: Jeollabuk-do, South Korea
- Brand Name: SEP-BARGE
- Model Number: MI-100HS
- Product name: MI-100HS
- Pay-Load: 18Tons
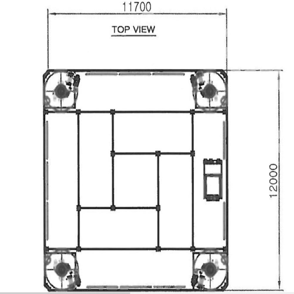
- Size: 12m x 12m
- Material: Steel
- Main Dimension: Length 11.96 meter Width 11.96 meter Depth 1.632 meter
- Main Dimension 1: Leg Length 36 meter Leg Dia 0.457 meter
- Operating Condition: Wind 15m/sec ,height of wave 1.5 meter ,Current velocity1.5 knot
- Working Condition: Work Table 11x12 meter/Sea Depth 30 meter,Road 18 ton
- Main pump Engine: 130ps/1800rpm
- Mooring System: Winches4/ 1Drum, 4 ton, Ancoors 4 0.15 ton 2.8(W) x 2.8(L)/meter

SILVER